新築一戸建て 宗像市原町1号棟
分譲住宅、だからこそ“注文住宅以上”
ミッドセンチュリーモダンの洗練さ
【違うから、響きあう】
ミッドセンチュリーモダンが香る、洗練の住まい。
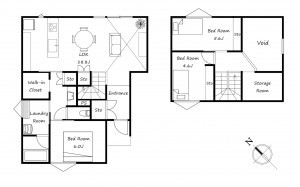
吹き抜けから光が降り注ぐ開放的なLDK。
階段のラインや造作家具までこだわり抜いたデザインで、
暮らしに「美しさ」と「心地よさ」を添えます。
● 設計士による丁寧なプランニング
広々LDKも、こもり感のある個室も。暮らし方に合わせて、ちょうどいい空間を。
●高性能な住まいで、ずっと快適に。
・G1グレード(UA値0.56以下)の断熱性能
・気密性能C値0.3!(注文住宅と同レベル)
・床下エアコン搭載で、家全体がぽかぽか
・耐震等級3
子育て世帯におすすめの立地です◎
■コンビニやスーパーが徒歩10分圏内!生活に便利な立地です。
■宗像市立南郷小学校まで徒歩7分(545m)。お子様も無理なく通えます。
支払例
※西京銀行/借入金4,230万円、返済期間50年、金利0.880%(変動金利)の場合
※審査により金利は変わる可能性があります。
物件概要
- 交通
-
JR鹿児島本線 東郷駅 まで 徒歩45分
東郷駅から車で8分(3500m)
- 土地面積
- 公簿 172.00㎡ (52.03坪)
- 建物面積
- 96.82㎡ (29.28坪)
- 築年数
- 2026年 (令和8) 1月 完成予定
- 建ぺい率
- 60%
- 容積率
- 200%
- 土地権利
- 所有権
- 構造および階数
- 木造 地上2階建
- 小学校区
- 南郷 (500m)
- 中学校区
- 中央 (2300m)
- 私道負担
- なし
- 地目
- 宅地
- 現況
- 建築中
- 引渡時期
- 相談 2025年3月 契約後6か月
- 駐車場
- 有 普通2台
- 上水道
- 公共
- 下水道
- 公共
- ガス
- プロパン個別
- 都市計画
- 市街化区域
- 用途地域
- 1種住居
- 建築確認番号
- 第R07SHC104713号
- 設備・条件
- システムキッチン、カウンターキッチン、食器洗浄乾燥機、IHクッキングヒーター、オール電化、シャンプードレッサー、洗浄便座、浴室乾燥機、追い焚き、ウォークインクローゼット、モニタ付インターホン、駐車場2台分、エコキュート
- 備考
- 取引態様
- 売主






