新築一戸建て 福岡市東区美和台3丁目1号棟
【記憶が息づく、素材と暮らす家。】
自分の家は、いつも「トクベツ」であってほしい。
帰るたびに心が弾み、ただそこにいるだけで自然と頬が緩むような場所。
足を踏み入れると、目を引くのは職人の手仕事が光るテクスチャーのある壁面タイルや、
空間をそっと彩る、デザイン性の高い照明たち。
それらはただの装飾ではなく、住まう人の日常や記憶を支える、ひそやかな「舞台装置」。
ある日には、子どもたちの足音がタイルに軽やかに響き、
またある日には、友人たちとの語らいが照明の下で、柔らかな光となって浮かび上がる。
年月が経つほどに、素材には少しずつ傷や色の変化が生まれる。
けれどそれこそが、この家の魅力。
家族の思い出が、ひとつずつ素材に染み込み、
やがてこの家そのものが、かけがえのない「物語」になるのだ。
---------------------------------------
<高気密・高断熱>
”子育てエコ補助金”対象物件
・耐震等級3取得!地震に強いお家
・地球環境にやさしいZEH水準
・吹付断熱でお家の中も快適
・省令準耐火構造で火災に強い
<設備>
パナソニック製の設備を採用。
使い勝手はもちろん、日々のお手入れのしやすい工夫も施されています。
支払例
※西京銀行/借入金5,480万円、返済期間50年、金利0.550%(変動金利)の場合
※審査により金利は変わる可能性があります。
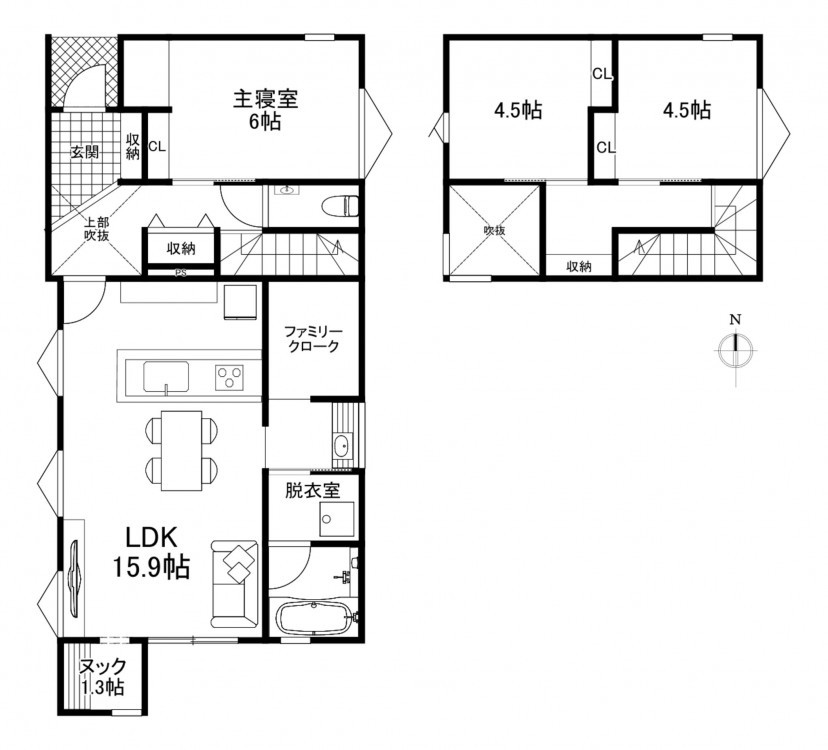
物件概要
- 交通
-
西鉄貝塚線 三苫駅 まで 徒歩4分
JR鹿児島本線 福工大前駅 まで 徒歩25分
- 土地面積
- 公簿 167.34㎡ (50.62坪)
- 建物面積
- 89.64㎡ (27.11坪)
- 築年数
- 2026年 (令和8) 1月 完成予定
- 建ぺい率
- 50%
- 容積率
- 80%
- 土地権利
- 所有権
- 構造および階数
- 木造 地上2階建
- 小学校区
- 美和台 (332m)
- 中学校区
- 和白丘 (1066m)
- 私道負担
- なし
- 地目
- 宅地
- 現況
- 建築中
- 引渡時期
- 予定 2026年1月
- 駐車場
- 2台
- 上水道
- 公共
- 下水道
- 公共
- ガス
- 都市計画
- 市街化区域
- 用途地域
- 1種低層
- 建築確認番号
- 第R07SHC112815号
- 設備・条件
- システムキッチン、カウンターキッチン、食器洗浄乾燥機、IHクッキングヒーター、オール電化、シャンプードレッサー、洗浄便座、浴室乾燥機、追い焚き、複層ガラス、ウォークインクローゼット、モニタ付インターホン、駐車場2台分
- 備考
- 取引態様
- 売主






