新築一戸建て 宗像市稲元2丁目C号棟
所在地
宗像市稲元2丁目C号棟
4,390万円
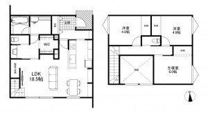
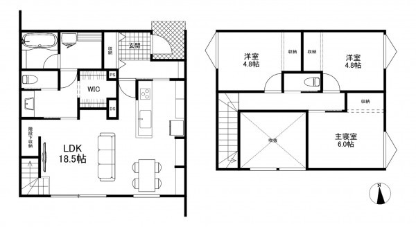
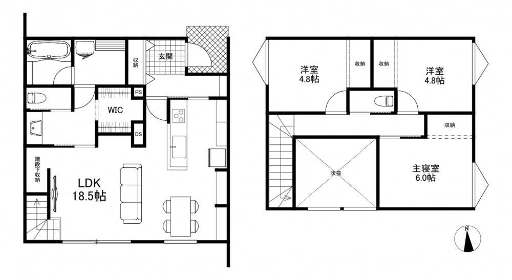
29.71坪
3LDK
Panasonicと考えた
NEWミッドセンチュリーモダンと家事ラクな家
小中学校が徒歩15分圏内に揃い、子育て世代にも安心の立地。
注文住宅と同等の仕様を取り入れ、暮らしやすさとデザイン性を両立しました。
― 暮らしを豊かにする充実仕様 ―
・フロントオープン食洗機(標準設備)
毎日の洗い物がラクになります。
・床下エアコン
エアコン1台でお家の中のどこにいても快適な温度を保ちます。
・家具付き
お家の雰囲気にあわせてセレクトした家具付きのお家です。
●高気密・高断熱なお家
・G1水準、UH値0.6以下
・注文住宅と同性能の気密性、C値0.3
・耐震等級3取得!
・省令準耐火で火災保険もお得
月々の
支払例
支払例
万円
年
%
円
※西京銀行/借入金4,390万円、返済期間50年、金利0.880%(変動金利)の場合
※審査により金利は変わる可能性があります。
物件概要
- 交通
-
JR鹿児島本線 赤間駅 まで 徒歩20分
赤間駅まで車で5分
- 土地面積
- 公簿 141.43㎡ (42.78坪)
- 建物面積
- 98.22㎡ (29.71坪)
- 築年数
- 2026年 (令和8) 6月 完成予定
- 建ぺい率
- 60%
- 容積率
- 200%
- 土地権利
- 所有権
- 構造および階数
- 木造 地上2階建
- 小学校区
- 河東 (924m)
- 中学校区
- 河東 (1140m)
- 私道負担
- なし
- 地目
- 宅地
- 現況
- 未着工
- 引渡時期
- 相談
- 駐車場
- 普通2台
- 上水道
- 公共
- 下水道
- 公共
- ガス
- 都市計画
- 市街化区域
- 用途地域
- 1種住居
- 建築確認番号
- 第R07SHC112416号
- 設備・条件
- システムキッチン、カウンターキッチン、食器洗浄乾燥機、IHクッキングヒーター、オール電化、シャンプードレッサー、洗浄便座、浴室乾燥機、追い焚き、複層ガラス、ウォークインクローゼット、モニタ付インターホン、駐車場3台分、トイレ2箇所、床下エアコン、家具付き
- 備考
- 取引態様
- 売主






